













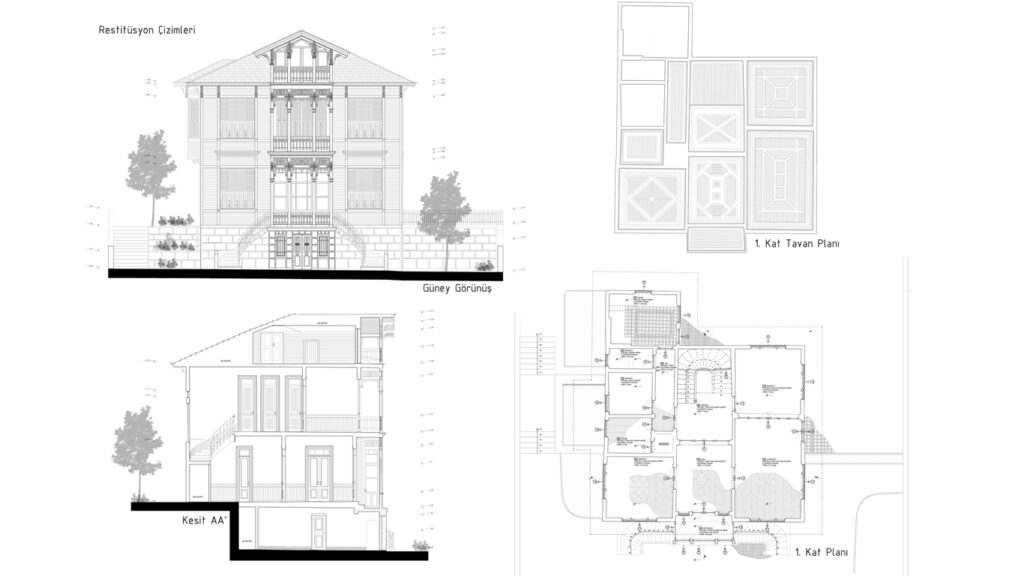
Muratoğlu Konağı Rölöve, Restitüsyon ve Restorasyon Çalışmaları
Kategori: Proje
Tarih: 2017
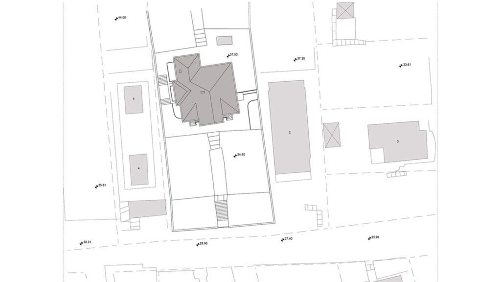
Konum: Heybeliada, İstanbul
Ekip: M. Sinan Kolay, Esra Furuncuoğlu
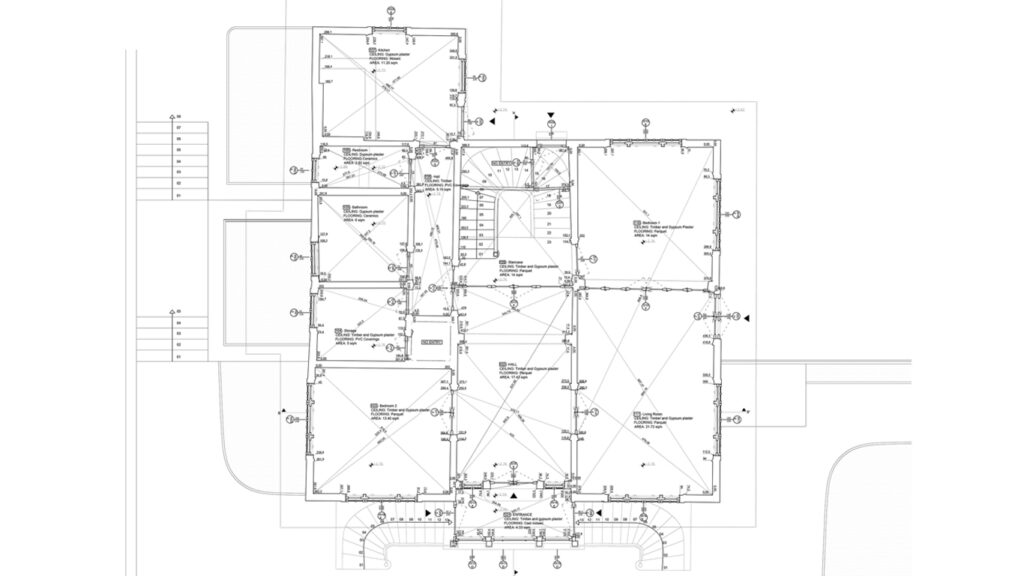
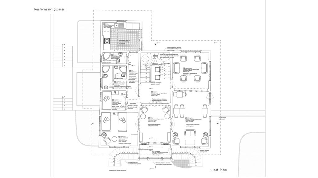
Yapının mevcut durumu incelenerek hasarlar, eksik parçalar, kullanılan malzemeler ve sonradan yapılan eklemeler tespit edilip raporlanmıştır. Kagir bir giriş üzerine inşa edilmiş ahşap karkas yapının dışarıdan dört farklı girişi bulunmaktadır. Merdiven ile giriş holü arasındaki orijinal kapı ve bölücü duvar kaldırılmış, bunların yerine yakın zamanda yeni bir kapı ve bölücü eklenmiştir. Yeni elemanlar, öncekinin yaklaşık 1,5 metre daha merdivene yakın bir noktasına yerleştirilmiştir. Kuzey cephesine de sonradan bir giriş kapısı eklenmiştir. Giriş holünde boya dökülmeleri gözlemlenmiş, mutfaktaki prekast mozaik zemin kaplamasında oluşan kayıplar ise harçla doldurulmuştur.
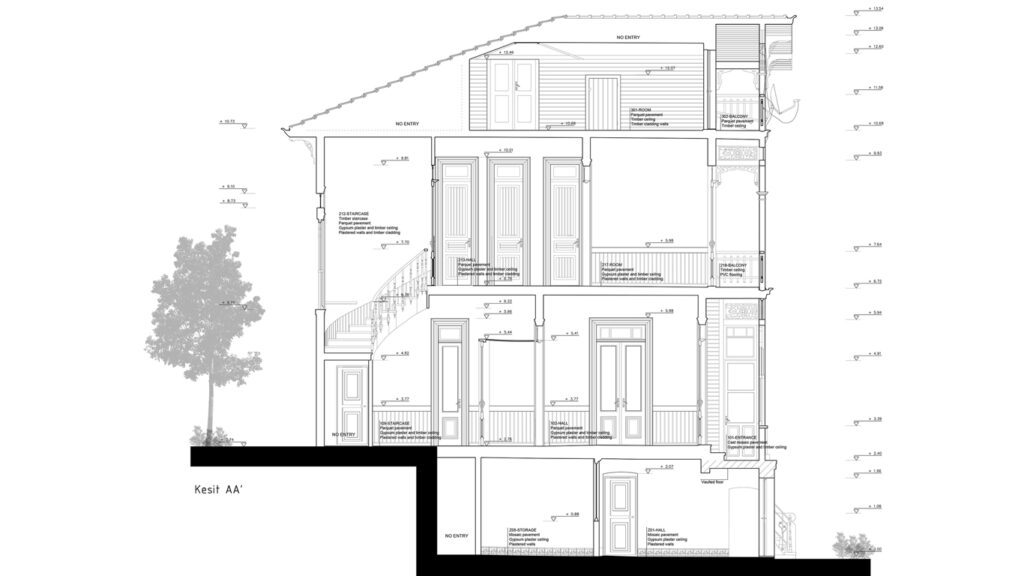
Yapı, fotogrametri yöntemiyle nokta bulutu oluşturularak dijital ortamda modellenmiş ve bu model rölöve çalışmalarına altlık olarak kullanılmıştır.
